套筒調節閥,ZDLM電動套筒調節閥法蘭尺寸:符合JB78-59、JB79-59,JB/79.1-94、JB、ANSI、JIS、DIN 等標準訂貨生產
閥體材質:WCB(ZG230-450)、ZG1Cr18Ni9Ti、ZG0Cr18Ni12Mo2Ti CF8 CF8M
閥芯材質:1Cr18Ni9,SS304,0Cr18Ni12Mo2Ti,SS316,ZG1Cr18Ni9Ti
ZDLM電動套筒調節閥概述
ZDLM電動套筒調節閥,接受調節儀表輸入的(4-20mA DC、0-10mA DC或1-5V DC)等控制信號及電源即可控制運轉,實現對工藝管路流體的自動調節控制。廣泛應用于控氣體、液體、蒸汽等介質的工藝參數,如壓力、流量、溫度、液位等參數保持在給定值,是符合IEC標準的通用調節閥產品。雙座閥具有不平衡力小、允許壓差大、流通能力大等特點,適用于泄漏要求不嚴、壓差較大的干凈介質場合,廣泛應用于電力、冶金、化工、石油、環保、輕工、設備等行業。
| 公稱通徑 | 25 | 32 | 40 | 50 | 65 | 80 | 100 | 125 | 150 | 200 | 250 | 300 | 350 | 400 | ||||||
| 閥座直徑mm | 25 | 32 | 40 | 50 | 65 | 80 | 100 | 125 | 150 | 200 | 250 | 300 | 350 | 400 | ||||||
| 額定數Kv | 10 | 16 | 25 | 40 | 63 | 100 | 160 | 250 | 400 | 630 | 1000 | 1600 | 2000 | 2700 | ||||||
| 公稱壓力(MPa) | 1.6、2.5、4.0、6.4、10 | |||||||||||||||||||
| 行程(mm) | 16 | 25 | 40 | 60 | 100 | 130 | ||||||||||||||
| 流量特性 | 直線,等百分比,快開 | |||||||||||||||||||
| 工作溫度℃ | -40~+230℃(常溫型)、散熱片式+230~+450℃(中溫型)特殊訂貨 | |||||||||||||||||||
| 法蘭尺寸 | 符合JB/79.1(2)-94、HG20592-97、GB、ANSI、JIS、DIN等標準 | |||||||||||||||||||
| 閥體材質 | WCB、304、316、WC6、WC9、鈦、鎳、哈氏合金、Monel等 | |||||||||||||||||||
| 閥芯材質 | 304、316、420、鈦、鎳、哈氏合金、Monel等 | |||||||||||||||||||
| 閥體型式 | 直通雙座鑄造球型閥 | |||||||||||||||||||
| 上閥蓋型式 | 普通式(常溫),熱片式(中溫) | |||||||||||||||||||
| 配用電動 執行機構 | PSL-202 | PSL-204 | PSL-208 | PSL-312 | PSL320 | PSL325 | ||||||||||||||
| 361L | 361LSA-20 361LSA-20 | 361LSB-30 361LXB-30 | 361LSB-50 361LXB-50 | 361LSC-65 361XC-65 | 361LSC-99 361LXC-99 | 361LSC-160 361LXC-160 | ||||||||||||||
2.電動套筒閥技術參數
| 公稱通徑 | 25 | 32 | 40 | 50 | 65 | 80 | 100 | 125 | 150 | 200 | 250 | 300 | ||
| 閥座直徑mm | 26 | 32 | 40 | 50 | 66 | 80 | 100 | 125 | 150 | 200 | 250 | 300 | ||
| 額定 | 線性 | 11 | 17.6 | 27.5 | 44 | 69 | 110 | 176 | 275 | 440 | 690 | 1000 | 1600 | |
| 等百分比 | 10 | 16 | 25 | 40 | 63 | 100 | 160 | 250 | 400 | 630 | 900 | 1440 | ||
| 公稱壓力(MPa) | 1.6、2.5、4.0、6.4、10 | |||||||||||||
| 行程(mm) | 16 | 25 | 40 | 60 | 100 | |||||||||
| 流量特性 | 線性、等百分比、快開 | |||||||||||||
| 工作溫度℃ | -40~+230℃(常溫型)、散熱片式+230~十450℃(中溫型)、特殊訂貨 | |||||||||||||
| 法蘭尺寸 | 符合JB/79.1-94、HG20592-97、GB、ANSI、JIS、DIN等標準 | |||||||||||||
| 閥體材質 | WCB、304、316、WC6、WC9、鈦、鎳、哈氏合金、Monel等 | |||||||||||||
| 閥芯材質 | 304、316、420、鈦、鎳、哈氏合金、Monel等 | |||||||||||||
| 閥體型式 | 直通單座鑄造球型閥 | |||||||||||||
| 上閥蓋型式 | 普通式(常溫)、散熱片式(中溫) | |||||||||||||
| 配用電動 執行機構 | PSL | PSL-202 | PSL-204 | PSL-208 | PSL-312 | PSL-320 | ||||||||
| 3611 | 361LSA-20 361LXA-20 | 361LSB-30 361LXB-30 | 361LSB-50 361LXB-50 | 361LSC-65 361LXC65 | 361LSC-99 361LXC-99 | |||||||||
注:本公司生產套筒閥的大口徑至DN400。 電動執行機構技術參數
| 型號 | 額定輸出力N | 速度mm/s | 技術參數 | ||||
| PSL | 361L | PSL | 361L | PSL | 361L | PSL | 361L |
| 201 | 361LSA-08 361LXA-08 | 1000 | 800 800 | 0.25 | 4.2 4.2 | ||
| 202 | 361LSA-20 361LXA-20 | 2000 | 2000 2000 | 0.50 | 2.1 2.1 | 電源:AC220V 50HZ 輸入信號:DC4-20mA DC1-5V (信號線用屏蔽線) 輸出信號:DC4~20mA 防護等級:IP67 帶手輪 | 電源:AC220V 50Hz 輸入信號:DC4-20mA DC1-5V (信號線用屏蔽線) 輸出信號:DC4~20mA 防護等級:IP65 隔爆標志:Exd ll BT4 帶手柄 |
| 204 | 361LSB-30 361LXB-30 | 4500 | 3000 3000 | 0.50 | 3.5 3.5 | ||
| 208 | 361LSB-50 361LXB-50 | 8000 | 5000 5000 | 1.00 | 1.7 1.7 | ||
| 312 | 361130-65 | 12000 | 6500 | 0.60 | 2.8 | ||
| 320 | 361LSC-99 | 20000 | 10000 | 1.0 | 2.0 | ||
注:其它可選電動執行機構:揚州西門子、英國羅托克等 性能指標
| 項目 | 指標值 | ||
| 基本誤差% | 配361L±2.5;配PSL±1.0 | ||
| 回差% | 配361L 2.0;配PSL 1.0 | ||
| 死區% | 配361L 3.0;配PSL 1.0 | ||
| 始終點偏差% | 電開 | 始點 | ±2.5 |
| 終點 | ±2.5 | ||
| 電關 | 始點 | ±2.5 | |
| 終點 | ±2.5 | ||
| 可調范圍 | 50:1 | ||
| 額定行程偏差% | ±2.5 | ||
| 泄漏量L/H | 符合JB/T7387-94 IV級小于閥的額定容量X 10-4 | ||
允許壓差
| 公稱通徑 | 20 | 25 | 40 | 50 | 65 | 80 | 100 | 150 | 200 | |||||||||||
| 閥座直徑(mm) | 10 | 12 | 15 | 20 | 25 | 32 | 40 | 50 | 65 | 80 | 100 | 125 | 150 | 200 | ||||||
| 執行機構 | 允許壓差△P(MPa) | |||||||||||||||||||
| 配PSL | PSL202 | 6.4 | 6.4 | 6.4 | 4.90 | 3.14 | 1.92 | 1.23 | 0.78 | |||||||||||
| PSL204 | 4.31 | 2.76 | 1.76 | 1.04 | 0.69 | 0.44 | ||||||||||||||
| PSL208 | 1.86 | 1.23 | 0.78 | 0.50 | 0.35 | 0.20 | ||||||||||||||
| PSL320 | 1.26 | 0.87 | 0.49 | |||||||||||||||||
| 配361L | 361LSA-20 | 6.4 | 6.4 | 6.4 | 4.90 | 3.14 | 1.92 | 1.23 | 0.78 | |||||||||||
| 3611SB-50 | 4.79 | 3.06 | 1.96 | 1.16 | 0.76 | 0.49 | ||||||||||||||
| 3611SC-65 | 1.51 | 0.99 | 0.64 | 0.41 | 0.28 | |||||||||||||||
| 3611SC-99 | 0.63 | 0.44 | 0.25 | |||||||||||||||||
1、電動單座閥允許壓差
注:實際配置需根據工藝參數確定。如果工作壓差超出上表范圍,請與我公司聯系.
2、電動套筒閥允許壓差
| 公稱通徑 | 25 | 50 | 65 | 80 | 100 | 200 | 250 | 300 | |||||
| 閥座直徑(mm) | 25 | 32 | 40 | 50 | 65 | 80 | 100 | 125 | 150 | 200 | 250 | 300 | |
| 執行機構 | 允許壓差△(Mpa) | ||||||||||||
| 配PSL | PSL204 | 6.4 | 6.4 | 6.4 | 5.1 | 6.4 | |||||||
| PSL204 | 6.4 | 5.62 | |||||||||||
| PSL208 | 6.4 | 5.31 | 3.97 | ||||||||||
| PSL320 | 6.4 | 4.14 | |||||||||||
| 配361L | 361LSA-20 | 6.4 | 6.4 | 6.4 | 6.4 | 6.4 | |||||||
| 361LSB-50 | 6.4 | 6.25 | |||||||||||
| 361LSC-65 | 6.4 | 4.32 | 3.23 | ||||||||||
| 361LSC-99 | 3.31 | 2.7 | |||||||||||
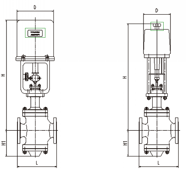
注:實際配置需根據工藝參數確定。如果工作壓差超出上表范圍,請與我公司聯系. 單位:mm
| 公通通徑 | 20 | 25 | 40 | 50 | 65 | 80 | 100 | 150 | 200 | 250 | 300 | |||||||||||
| L | PN16 | 187 | 184 | 222 | 254 | 276 | 298 | 352 | 451 | 600 | 673 | 737 | ||||||||||
| PN40 | 194 | 197 | 235 | 267 | 292 | 317 | 368 | 473 | 600 | 708 | 775 | |||||||||||
| PN64 | 206 | 210 | 251 | 286 | 311 | 337 | 394 | 508 | 650 | 752 | 819 | |||||||||||
| H1(PN16) | 52.5 | 57.5 | 72.5 | 80 | 90 | 97.5 | 107.5 | 140 | 167.5 | 202.5 | 230 | |||||||||||
| 配PSL | H | 普通型 | 738 | 750 | 765 | 767 | 845 | 857 | 875 | 1025 | 1045 | 1252 | 1545 | |||||||||
| 散熱片型 | 888 | 900 | 935 | 937 | 1025 | 1037 | 1055 | 1255 | 1280 | 1532 | 1825 | |||||||||||
| D | 176 | 225 | ||||||||||||||||||||
| 重量KG(PN16) | 14 | 16 | 25 | 28 | 40 | 50 | 65 | 150 | 250 | 380 | 550 | |||||||||||
| 配361l | H | 普通型 | 500 | 512 | 652 | 660 | 770 | 780 | 790 | 1080 | 1125 | 1250 | 1265 | |||||||||
| 散熱片型 | 650 | 662 | 822 | 822 | 950 | 960 | 970 | 1310 | 1360 | 1530 | 1545 | |||||||||||
| D | 225 | 310 | ||||||||||||||||||||
| 重量KG(PN16) | 20 | 22 | 30 | 35 | 50 | 60 | 75 | 180 | 280 | 420 | 580 | |||||||||||
注:高度、重量為參考值,視選用執行機構而定。
電子式電動雙座調節閥概述
ZDLN型電子式電動雙座調節閥,接受調節儀表輸入的(4-20mA DC、0-10mA DC或1-5V DC)等控制信號及電源即可控制運轉,實現對工藝管路流體的自動調節控制。廣泛應用于控氣體、液體、蒸汽等介質的工藝參數,如壓力、流量、溫度、液位等參數保持在給定 值,是符合IEC標準的通用調節閥產品。雙座閥具有不平 衡力小、允許壓差大、流通能力大等特點,適用于泄漏 要求不嚴、壓差較大的干凈介質場合,廣泛應用于電 力、冶金、化工、石油、環保、輕工、設備等行業。
電動雙座閥主要技術參數
| 公稱通徑 | 25 | 32 | 40 | 50 | 65 | 80 | 100 | 125 | 150 | 200 | 250 | 300 | 350 | 400 | ||||||
| 閥座直徑mm | 25 | 32 | 40 | 50 | 65 | 80 | 100 | 125 | 150 | 200 | 250 | 300 | 350 | 400 | ||||||
| 額定數Kv | 10 | 16 | 25 | 40 | 63 | 100 | 160 | 250 | 400 | 630 | 1000 | 1600 | 2000 | 2700 | ||||||
| 公稱壓力(MPa) | 1.6、2.5、4.0、6.4、10 | |||||||||||||||||||
| 行程(mm) | 16 | 25 | 40 | 60 | 100 | 130 | ||||||||||||||
| 流量特性 | 直線,等百分比,快開 | |||||||||||||||||||
| 工作溫度℃ | -40~+230℃(常溫型)、散熱片式+230~+450℃(中溫型)特殊訂貨 | |||||||||||||||||||
| 法蘭尺寸 | 符合JB/79.1(2)-94、HG20592-97、GB、ANSI、JIS、DIN等標準 | |||||||||||||||||||
| 閥體材質 | WCB、304、316、WC6、WC9、鈦、鎳、哈氏合金、Monel等 | |||||||||||||||||||
| 閥芯材質 | 304、316、420、鈦、鎳、哈氏合金、Monel等 | |||||||||||||||||||
| 閥體型式 | 直通雙座鑄造球型閥 | |||||||||||||||||||
| 上閥蓋型式 | 普通式(常溫),熱片式(中溫) | |||||||||||||||||||
| 配用電動 執行機構 | PSL-202 | PSL-204 | PSL-208 | PSL-312 | PSL320 | PSL325 | ||||||||||||||
| 361L | 361LSA-20 361LSA-20 | 361LSB-30 361LXB-30 | 361LSB-50 361LXB-50 | 361LSC-65 361XC-65 | 361LSC-99 361LXC-99 | 361LSC-160 361LXC-160 | ||||||||||||||
電動執行機構技術參數
| 型號 | 額定輸出力N | 速度mm/s | 技術參數 | ||||
| PSL | 361L | PSL | 361L | PSL | 361L | PSL | 361L |
| 201 | 361LSA-08 361LXA-08 | 1000 | 800 800 | 0.25 | 4.2 4.2 | ||
| 202 | 361LSA-20 361LXA-20 | 2000 | 2000 2000 | 0.50 | 2.1 2.1 | 電源:AC220V 50HZ 輸入信號:DC4-20mA DC1-5V (信號線用屏蔽線) 輸出信號:DC4~20mA 防護等級:IP67 帶手輪 | 電源:AC220V 50Hz 輸入信號:DC4-20mA DC1-5V (信號線用屏蔽線) 輸出信號:DC4~20mA 防護等級:IP65 隔爆標志:Exd ll BT4 帶手柄 |
| 204 | 361LSB-30 361LXB-30 | 4500 | 3000 3000 | 0.50 | 3.5 3.5 | ||
| 208 | 361LSB-50 361LXB-50 | 8000 | 5000 5000 | 1.00 | 1.7 1.7 | ||
| 312 | 361130-65 | 12000 | 6500 | 0.60 | 2.8 | ||
| 320 | 361LSC-99 | 20000 | 10000 | 1.0 | 2.0 | ||
注:其它可選電動執行機構:揚州西門子、英國羅托克等
| 公稱通徑 | 20 | 25 | 40 | 50 | 65 | 80 | 100 | 150 | 200 | |||||||||||
| 閥座直徑(mm) | 10 | 12 | 15 | 20 | 25 | 32 | 40 | 50 | 65 | 80 | 100 | 125 | 150 | 200 | ||||||
| 執行機構 | 允許壓差△P(MPa) | |||||||||||||||||||
| 配PSL | PSL202 | 6.4 | 6.4 | 6.4 | 4.90 | 3.14 | 1.92 | 1.23 | 0.78 | |||||||||||
| PSL204 | 4.31 | 2.76 | 1.76 | 1.04 | 0.69 | 0.44 | ||||||||||||||
| PSL208 | 1.86 | 1.23 | 0.78 | 0.50 | 0.35 | 0.20 | ||||||||||||||
| PSL320 | 1.26 | 0.87 | 0.49 | |||||||||||||||||
| 配361L | 361LSA-20 | 6.4 | 6.4 | 6.4 | 4.90 | 3.14 | 1.92 | 1.23 | 0.78 | |||||||||||
| 3611SB-50 | 4.79 | 3.06 | 1.96 | 1.16 | 0.76 | 0.49 | ||||||||||||||
| 3611SC-65 | 1.51 | 0.99 | 0.64 | 0.41 | 0.28 | |||||||||||||||
| 3611SC-99 | 0.63 | 0.44 | 0.25 | |||||||||||||||||
1、電動單座閥允許壓差
注:實際配置需根據工藝參數確定。如果工作壓差超出上表范圍,請與我公司聯系.
單位:mm
| 公通通徑 | 20 | 25 | 40 | 50 | 65 | 80 | 100 | 150 | 200 | 250 | 300 | |||||||||||
| L | PN16 | 187 | 184 | 222 | 254 | 276 | 298 | 352 | 451 | 600 | 673 | 737 | ||||||||||
| PN40 | 194 | 197 | 235 | 267 | 292 | 317 | 368 | 473 | 600 | 708 | 775 | |||||||||||
| PN64 | 206 | 210 | 251 | 286 | 311 | 337 | 394 | 508 | 650 | 752 | 819 | |||||||||||
| H1(PN16) | 52.5 | 57.5 | 72.5 | 80 | 90 | 97.5 | 107.5 | 140 | 167.5 | 202.5 | 230 | |||||||||||
| 配PSL | H | 普通型 | 738 | 750 | 765 | 767 | 845 | 857 | 875 | 1025 | 1045 | 1252 | 1545 | |||||||||
| 散熱片型 | 888 | 900 | 935 | 937 | 1025 | 1037 | 1055 | 1255 | 1280 | 1532 | 1825 | |||||||||||
| D | 176 | 225 | ||||||||||||||||||||
| 重量KG(PN16) | 14 | 16 | 25 | 28 | 40 | 50 | 65 | 150 | 250 | 380 | 550 | |||||||||||
| 配361L | H | 普通型 | 500 | 512 | 652 | 660 | 770 | 780 | 790 | 1080 | 1125 | 1250 | 1265 | |||||||||
| 散熱片型 | 650 | 662 | 822 | 822 | 950 | 960 | 970 | 1310 | 1360 | 1530 | 1545 | |||||||||||
| D | 225 | 310 | ||||||||||||||||||||
| 重量KG(PN16) | 20 | 22 | 30 | 35 | 50 | 60 | 75 | 180 | 280 | 420 | 580 | |||||||||||
訂貨須知
訂貨時請填寫《規格書》或注明以下內容:
一、若訂貨前還未選定型號,請向我們提供您的使用參數
1、公稱通徑、額定流量系數Kv
2、流體性質(包括公稱壓力、溫度、粘度或酸堿性)
3、閥作用形式(電-關式或電-開式)
4、流量特性
5、閥前、閥后壓力
6、閥體、閥芯材料
7、輸入信號
8、是否帶附件,說明附件型號,以便我們的為您正確選型。
二、特殊要求
1、特殊檢驗
2、完全去油、去水處理;
3、禁銅處理;
4、特殊接口、配管;
5、真空條件下使用;
6、指定涂層顏色
7、特殊介質(氧氣、氯氣、氫氣);
8、使用不銹鋼連接件;
三、若已經由設計單位選定我公司的產品型號,請按型號直接向我司銷售部訂購,請您盡量提供設計圖紙和詳細參數,由我們的廠家為您審核把關
四、當使用的場合非常重要或管路比較復雜。








?公司郵箱登入
?
浙公網安備33032402002441號